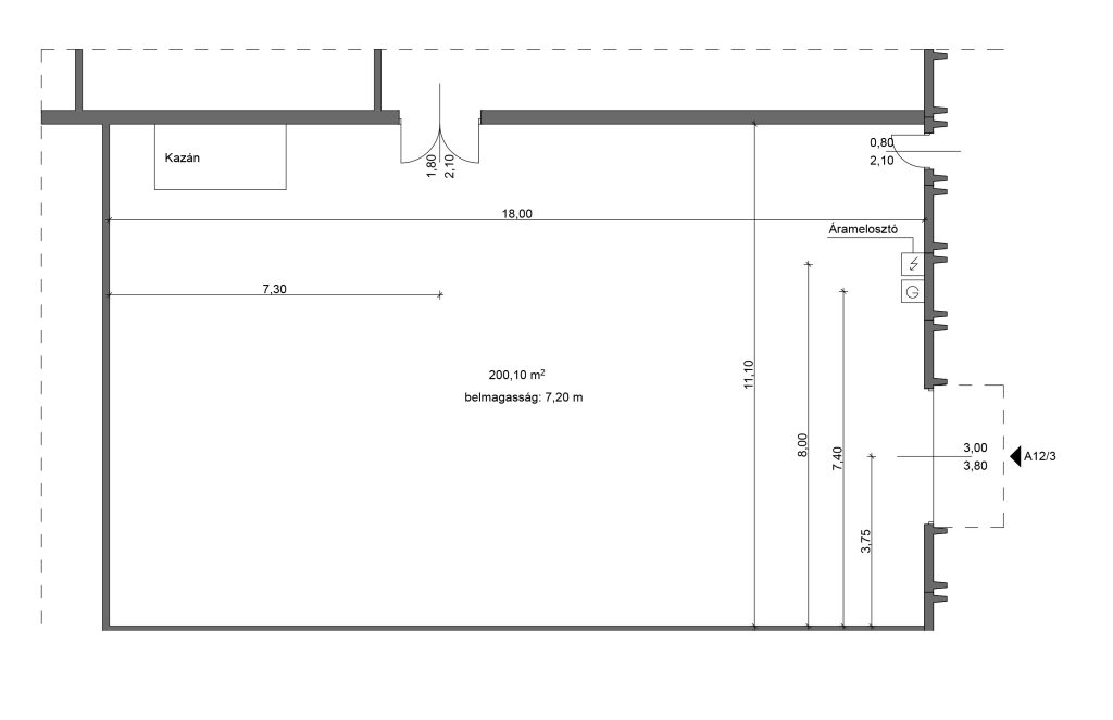
Budapest A12/III épület

Antal Raktárak

BUDAPEST

Műszaki jellemzők
  • 200 m2
  • 1 db ipari kapu 2,6 x 2,6 m
  • 1 db személyzeti bejáró
  • Padozat: ipari műgyanta
  • Világítás: LED világítás
  • Belmagasság: 6 m

Alaprajz

budapest_1
budapest_2
budapest_3
budapest_4