Budapest B2 épület

Antal Raktárak

BUDAPEST

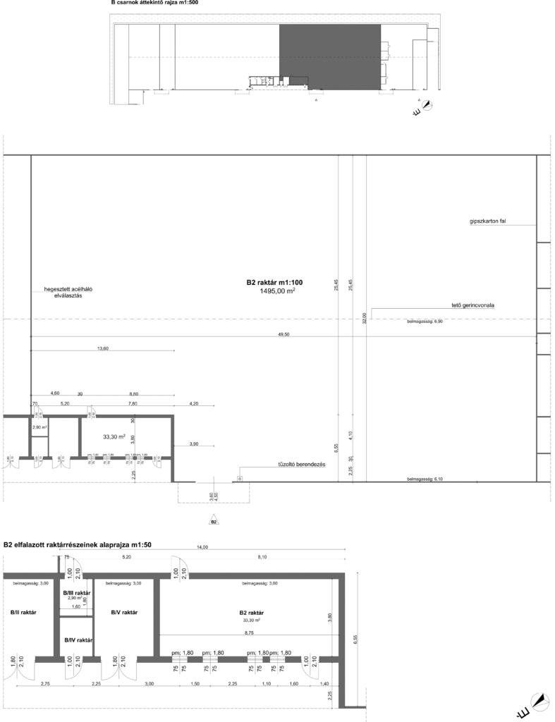
Műszaki jellemzők
  • 170 m2
  • 1 db ipari kapu 4,5 x 4,5 m
  • 1 db személyzeti bejáró
  • Padozat: ipari műgyanta
  • Világítás: LED világítás
  • Belmagasság: 6 m

Alaprajz

image-3-copyright
image-3-copyright
image-3-copyright
image-3-copyright