Budapest A4 épület

Antal Raktárak

BUDAPEST

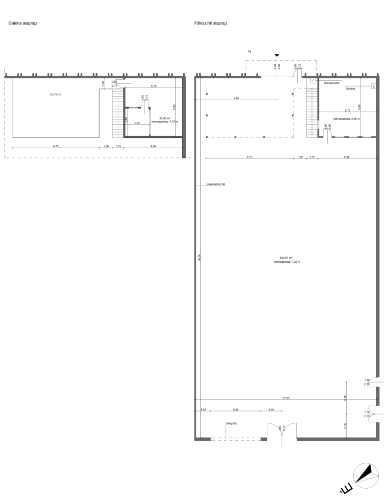
Műszaki jellemzők
  • 644 m2
  • 1 db ipari kapu 2,6 x 3,8 m
  • 1 db személyzeti bejáró
  • Padozat: aszfalt
  • Világítás: LED világítás
  • Iroda: 30 m2
  • Konyha: van
  • Vízkiállás, csatorna: van
  • Belmagasság: 6 m

Alaprajz

budapest_1
budapest_2
budapest_3
budapest_4