Antal Raktárak
TÖRÖKBÁLINT
Lokáció:
2045 Törökbálint
Hrsz.: 0152/12
a Mechanikai Művek területén
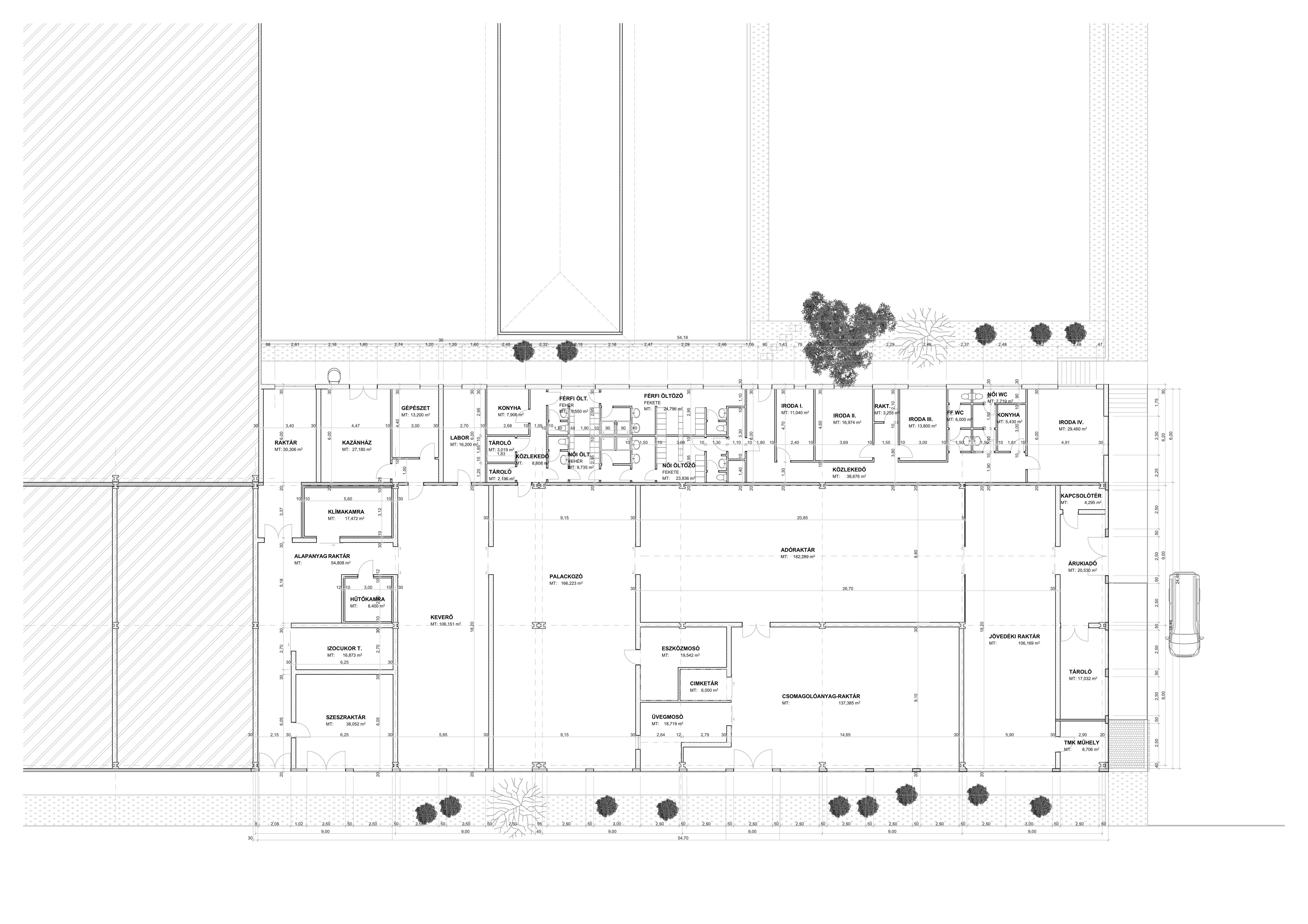
Törökbálinton, a Mechanikai Művek területén 3000 m²- es frissen felújított, gyönyörűen parkosított, 14 gépkocsi számára térkövezett parkolóval ellátott, körbe kerített területen, találhatók raktáraink és hozzájuk tartozó irodáink.
A felújított, szigetelt épület alapterülete kb. 1000 m², a maradék terület pedig jó minőségű iroda, szociális blokk és fekete-fehér öltöző.
Az épületben kompresszor ház és kiépített sűrített levegős rendszer található.
A raktár földszintről és rámpáról is pakolható.
Belmagasság: 4,5 m.
Törökbálinti ipartelepünktől teherautóval a 7-es főút 3 perc alatt, az M0 autópálya pedig 7 perc alatt elérhető.
Műszaki jellemzők
- Vasbeton szerkezet
- Szabad belmagasság: 4,5-6 m
- Egyoldali rakodás
- A raktár belső irodaterületekkel és szociális blokkokkal rendelkezik
- Padló terhelhetősége: 8000 kg/láb2
- Minimum 1 db ipari kapu minden raktárterületre
- Személyautó-parkoló
- Zárt láncú kamerarendszer
- Gazdaságosan üzemeltethető épület
- Fénycsöves világítás
- Porraloltók
- Pelletkazán fűtés
Alaprajz
Törökbálint térkép






